井上家登録
日田大肥の「井上酒造店舗兼主屋」「木造蔵」「煙突」の3物件が
国の登録文化財に答申された。
「井上酒造店舗兼主屋」
大正3(1914)年建築。(叉首構造、茅葺屋根)
昭和18(1943)年増改築。(中央部トラス組両脇束立母屋構造セメント瓦葺)
座敷・仏間の造作・・杉の面皮付四寸柱、鴨居・長押も杉材面皮仕様。
座敷トコ構えは、桑前丸のトコ柱、トコ框・地板・落掛け・脇トコの地板・書院の棚板等全て欅材、床上以上は色仕上げである。
仏間は、蹴込みトコで上框はタブ材、蹴込み板は杉横長木瓜型刳貫板が嵌る。
材料は、全て自家材にて賄った由。無垢材である。
昭和39年の造作になると張り物の桜小径竿縁・人工絞りの杉丸太柱。トコ框・地板共に欅合板が使用され、時代の変遷が見て取れる。


「木造蔵」
昭和12(1937)年建築。(瓦葺半切妻屋根、土蔵造り漆喰塗)
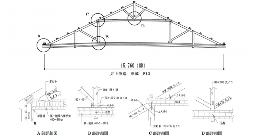
桁行12K、梁間8K、(木造総二階建て)
一階は中央3K巾に自然木杉丸太を6本建て
二階床を支える。
柱脚は、安山岩の独立礎石(写真06)、危険回避・作業の俊敏性・容易な清掃作業など効率性を考える。
特筆すべきは、二階の小屋組である。梁間8K を持ち放し大スパンの屋根を掛けている。
尚、大工全員が日田在住の者ばかりである。

【トラス構造について】
日本での洋小屋、トラス構造は明治10年代後半以降と言われている。
当初各地に建築された洋風建築は外観を洋風とし、小屋構造は和風であり擬洋風や和洋折衷など変遷してくる。
地方のトラス構造は、陸梁・合掌・真束・方杖と形の上は整っているも陸梁は日本の伝統工法を模倣した大径木丸太とし、合掌もタイコ落し材、その他は矩形製材品が使われるも仕口部に金物はないなどもある。また、真束に貫を通し振れ止めとする等の伝統工法の考えも見て取れる。
近隣に建てられているトラス構造を調べると、明治27年上棟の湯布院町「日野病院」。大正6年上棟の日田豆田町「薫長酒造仕込蔵」・大正8年「薫長麹室蔵」。この外豆田町では昭和6年「小御門家」。昭和7年「旧古賀医院」。昭和9年「草野薬局」。昭和18年「旧船津歯科」。また、昭和13年の「中津市歴史民俗資料館」などがある。その形態は下記に列挙する。

注;(イ)図の陸梁・合掌と(ロ)図の陸梁までは丸太やタイコ落しの材で造られ、以外の部材は全て矩形製材品で構成されている。(ロ)図以降の仕口部の金物は着装が見られ、(イ)図でも陸梁と真束の枘差し、水平挟み梁にはボルトが設けられている。

本物件井上酒造の木造蔵のトラス構造は、(チ)図 釣島灯台退息所 M6のクイーンポストトラスと同形である。釣島灯台退息所は官営工事であり、英国人設計者の元に本格的技術が導入された建築物である。釣島灯台退息所から64年後に建築された酒蔵は、第一陸梁と第2陸梁は松丸太の八面取りの和風伝統工法仕様の梁を渡す。第一陸梁は15.76m飛ばすのであるが、末口210φ・元口460φと中径木であり、また第2陸梁も210φで設置している。伝統工法で見るとき、梁間8間の割には細身の丸太である。陸梁以外の部材は全て丸鋸加工であり、母屋には転用材も使われる。また、トラス間の振れ止めの貫が真束に通される仕口金物もボルトやカスガイに込栓打ちの箇所もある。方杖類に仕口金物は見当たらない。
以上から考察するに、地方でも矩形製材品の使用が認められる時代の建設であるが、大スパンの梁間のため、地上で組んで上げることはクレーン等が未だなく困難であり、伝統工法による小屋梁を考えたものと思う。但し、陸梁の径を小さく出来るというトラス構造の理念が理解されてたのか、クイーンポストトラスの工法も知り得たのかは明確に出来ない。また近隣に於いてクイーンポストトラス工法の建物は見当らず、類例(チ)の釣島灯台退息所(愛媛)を見学したとは考えにくく、伝統工法の二段梁の技法をアレンジしたものと思える。
地方の大工が見様見真似の時代から、トラス構造が地方へも普及していく過程も見て取れるのである。また仕口金物の欠落部や伝統工法による枘差し込栓打ちなどの技法が混在するなど、建築史的背景や造形の規範ともなる物件であり、このトラス工法は大空間を支える構造として圧巻であり、また端整でもある。近隣では見当たらず酒造の木造蔵として現役でも活用されている貴重な建築物である。
※参考文献:木造建築辞典 技法洋風構造(木村勉氏著)




